KAPCSOLATFELVÉTEL
Ingatlan jellege
családi ház
Belső terület
239 m²
Telek terület
477 m²
Tájolás
kelet, nyugat
Építési állapot
használt
Építési mód
szilikát
Szobák száma
5 szoba
Épület szintje
4.
Épült
1985
Ingatlan állapot
kívül: jó
belül: jó
Szigetelés
6 cm
Fűtés
gázkazán
Komfort
összkomfort
Parkolás
van önálló garázs
Közműállapot
csatorna: bekötve
gáz: bekötve
villany: bekötve
víz: bekötve
Energetika
nincs
Heves megye, Eger, Hatvanihóstya
Irányár
Szobák
Terület
Telek terület
Az eladó egri családi ház főbb jellemzői:
- frekventált, jól megközelíthető, belváros közeli elhelyezkedés
- 477 nm-es, összközműves telken
- 1985-ben épült
- szilikát építésű, pala tetőfedéssel
- jó állapotban (ízlés és igény szerint felújítandó)
- homlokzati szigetelés (6 cm)
- 4 szintes elrendezés
- pince szinten egy 37 nm-es tároló helyiség és egy 9,45 nm-es kazánház (46,45 nm)
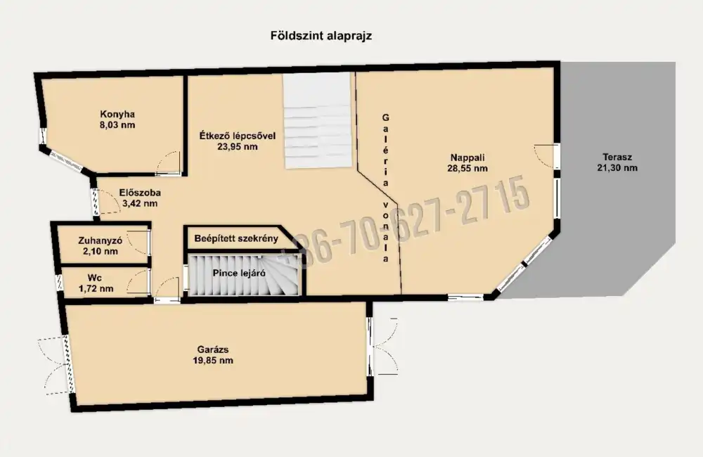
- földszinten előszoba, konyha, különálló fürdőszoba (zuhanyzós) és wc, étkező, nappali (92,47 nm)
- emeleten 2 szoba, különálló fürdőszoba (fürdőkádas) és wc, közlekedő, 2 db erkély (65,48 nm)
- tetőtérben 2 szoba, közlekedő (35,02 nm)
- földszinten műanyag, az emeleten fa nyílászárók
- egyedi gázfűtés (gázkazán) + a nappaliban padlófűtés és cserépkályha
- a meleg víz ellátás bojlerrel működik
- földszinten és a fürdőszobákban hidegburkolat, az emeleten és a szobákban faparketta
- nagyon szép megmunkálású fa lépcső
- nappaliból nyíló tágas, terasz (21,30 nm)
- gondozott kert
- garázs, mely a földszintről közvetlen megközelíthető (19 nm)
- a ház előtt parkolási lehetőség
- tömegközlekedés, bolt, gyógyszertár gyalog elérhető közelségben
- belváros, népkert is elérhető közelségben
Ez az eladó egri családi ház jó lehetőséget biztosít saját otthonként is, de elhelyezkedéséből és adottságaiból kiindulva, akár vendégházként hasznosítva is jól megtérülő befektetés lehet! Amennyiben szeretné megtekinteni, vagy további kérdése merülne fel, keressen bizalommal telefonos elérhetőségemen!
További szolgáltatásaink:
- energetikai tanúsítvány
- ügyvédi ügyintézés, jogi képviselet
- díjmentes, bank semleges hitelügyintézés
- villamossági felülvizsgálat
belül: jó
gáz: bekötve
villany: bekötve
víz: bekötve

+36 70 627 2715
judit.birinyi@judithomes.hu
KAPCSOLATFELVÉTEL
Ingatlan jellege
családi ház
Belső terület
239 m²
Telek terület
477 m²
Tájolás
kelet, nyugat
Építési állapot
használt
Építési mód
szilikát
Szobák száma
5 szoba
Épület szintje
4.
Épült
1985
Ingatlan állapot
kívül: jó
belül: jó
Szigetelés
6 cm
Fűtés
gázkazán
Komfort
összkomfort
Parkolás
van önálló garázs
Közműállapot
csatorna: bekötve
gáz: bekötve
villany: bekötve
víz: bekötve
Energetika
nincs