KAPCSOLATFELVÉTEL
Ingatlan jellege
téglalakás
Belső terület
80 m²
Tájolás
észak
Építési állapot
használt
Építési mód
tégla
Szobák száma
4 szoba
Szobák elhelyezkedése
külön nyílik min. 2 szoba
Emelet
földszint.
Épület szintje
4.
Lift
nincs
Ingatlan állapot
kívül: jó
belül: felújított
Fűtés
gázkazán
Komfort
összkomfort
Parkolás
van teremgarázs
Kilátás
utcára
Energetika
nincs
Heves megye, Eger, Belváros
Irányár
Szobák
Emelet
Terület
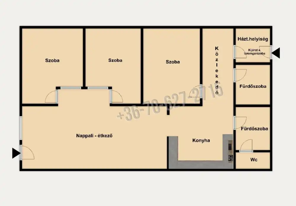
Az eladó egri társasházi lakás / apartman főbb jellemzői:
- frekventált, belváros közeli elhelyezkedés
- tégla építésű, rendezett társasházban
- szigetelt homlokzat
- földszinti
- 80 nm-es lakótér
- nappali + 3 szoba, konyha-étkező-nappali, 1 különálló fürdőszoba és 1 különálló wc, illetve 1 fürdőszoba és wc egyben
- 2024-ben teljes műszaki és esztétikai felújításon átesett (víz-, villanyvezetékek cseréje, fűtési rendszer korszerűsítése, burkolatok cseréje, szaniterek cseréje, új beépített, gépesített konyhabútor)
- egyedi gázfűtés (cirkó) + a nappaliban hűtő-fűtő klíma
- műanyag nyílászárók redőnnyel ellátva
- esztétikus, igényes kialakítás
- beépített, gépesített konyhabútor, magas minőségű műszaki felszereltséggel
- új burkolatok, szaniterek a fürdőszobákban
- szobákban laminált parketta, a többi helyiségben hidegburkolat
- külön utcáról nyíló bejárat
- jelenleg apartmanként funkcionál, teljes felszereltséggel, meglévő foglalásokkal
- a belváros, bolt, piac, közintézmények, tömegközlekedés gyalog is elérhetőek
- a ház előtt parkolási lehetőség
- az ingatlanhoz tartozik egy teremgarázs, mely közvetlen az ingatlanból is megközelíthető, ennek ára + 7MFt
Ezt a kiváló elhelyezkedésű eladó egri lakást adottságaiból fakadóan szívből ajánljuk saját otthonnak is, de apartmanként való tovább üzemeltetése egy kiváló befektetési lehetőséget rejt magában! Az apartman teljesen új állapotban van a felújítás után, teljesen felszerelt és az irányár a teljes berendezést is tartalmazza! A leendő tulajdonos akár már a meglévő foglalásokkal is tovább üzemeltetheti, így akár már azonnal bevételt generálhat!
Amennyiben további információra lenne szükség, esetleg szeretné személyesen megtekinteni, forduljon hozzám telefonos elérhetőségemen!
További szolgáltatásaink:
- energetikai tanúsítvány
- ügyvédi ügyintézés, jogi képviselet
- díjmentes, bank semleges hitelügyintézés
- villamossági felülvizsgálat
belül: felújított

+36 70 627 2715
judit.birinyi@judithomes.hu
KAPCSOLATFELVÉTEL
Ingatlan jellege
téglalakás
Belső terület
80 m²
Tájolás
észak
Építési állapot
használt
Építési mód
tégla
Szobák száma
4 szoba
Szobák elhelyezkedése
külön nyílik min. 2 szoba
Emelet
földszint.
Épület szintje
4.
Lift
nincs
Ingatlan állapot
kívül: jó
belül: felújított
Fűtés
gázkazán
Komfort
összkomfort
Parkolás
van teremgarázs
Kilátás
utcára
Energetika
nincs